Réussir son projet immobilier n'arrive pas qu'aux autres!
Ludovic Esnault conseilller immobilier sur le secteur de Loué, Brûlon et leurs environs

72540 Loué
Immeuble commerce + logement à rénover et creer - Réf 112_LET-0026083

115 000 €






Ludovic ESNAULT conseiller en immobilier NOOVIMO vous présente:
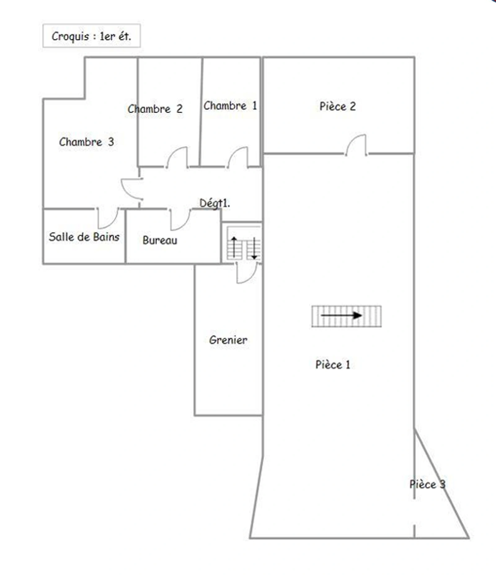
Immeuble de rapport Commerce + potentiel logements Centre de Loué
Situé en plein centre de la commune de Loué, cet immeuble bénéficie d'un emplacement stratégique avec un commerce en place depuis plusieurs décennies.
Le bien comprend un local commercial avec bail 3/6/9 en cours (début 2024), générant un loyer annuel de 9 900 EUR HT.
L'immeuble propose également un appartement d'environ 60 m2 à rénover entièrement, ainsi que deux plateaux d'environ 150 m2 chacun pouvant être transformés en logements. Un grenier exploitable complète l'ensemble.
Des autorisations d'urbanisme ont été accordées pour la création de logements, offrant un fort potentiel de développement et d'optimisation de la rentabilité.
Ce bien s'adresse à un investisseur ou à un professionnel souhaitant réaliser une opération avec création de valeur.
DPE :E / GES : E (logement)
Vous êtes intéressés ? Contactez-moi, votre conseiller Noovimo, au 06 60 40 73 07 ou par email à lesnault@noovimo.fr.
Retrouvez tous mes biens en vente sur ce secteur sur mon site : www.noovimo.fr.
Prix de vente : 115 000 EUR TTC, incluant les 5000 EUR d'honoraires à la charge de l'acquéreur. soit 110 000EUR net vendeurHonoraires consultables sur www.noovimo.fr.
Votre agent commercial est inscrit au RSAC de Le Mans no 879 881 324.






1 - Annonce rédigée et publiée par un Agent Mandataire -
Partager le contenu sur mes réseaux :
Me contacter
Voir le téléphone
Loading...
Les informations recueillies sur ce formulaire sont enregistrées dans un fichier informatisé par Ludovic Esnault pour gérer votre demande de contact. Elles sont conservées pour la durée nécessaire à la gestion de la relation client dans le respect des prescriptions légales applicables et sont destinées au responsable de la publication de ce site : Ludovic Esnault.
Conformément à la loi « informatique et libertés », vous pouvez exercer votre droit d'accès aux données vous concernant et les faire rectifier en contactant Ludovic Esnault lesnault@noovimo.fr ou en utilisant ce formulaire. Nous vous informons de l’existence de la liste d'opposition au démarchage téléphonique « Bloctel », sur laquelle vous pouvez vous inscrire ici : https://www.bloctel.gouv.fr/
Vous ne trouvez pas votre bonheur ? Votre projet d'achat
Bilan énergétique
DPE_ passoire énergétique logement extrêmement performant logement extrêmement peu performant consommation (énergie primaire) 323 kWh/m²/an émissions* 69 kgCO2/m²/an
DPE_ * Dont émissions de gaz à effet de serre peu d'émissions de CO2 émissions de CO2 très importantes 69 kgCO2/m²/an
Noovimo, société au capital de 10000.00 euros. Siège social : 29 Romain Rolland 44100 Nantes. N° de TVA intracommunautaire : FR75793556051. RCS NANTES immatriculé(e) 793556051.
Le titulaire de(s) carte(s) professionnelle(s) est Noovimo, société au capital de 10000.00 euros dont le siège social est situé au 29 Romain Rolland - 44100 Nantes et immatriculée au RCS Nantes - Siret : 79355605100027.

Carte T : 44012018000028735. Date de délivrance : NC. Lieu de délivrance : CCI DE NANTES. Caisse de garantie financière : AXA ASSURANCE. N° de caisse de garantie : NC. Adresse de la caisse de garantie : NC. Montant de la garantie financière : 110000 euros.
Conformément aux articles L611-1 et suivants et R612-1 et suivants du Code de la consommation, le consommateur est informé qu’il a la possibilité de saisir un ou notre médiateur de la consommation, à savoir MEDIATION – VIVONS MIEUX ENSEMBLE situé 465 avenue de la Libération 54000 NANCY - email : mediation@vivons-mieux-ensemble.fr - site : www.mediation-vivons-mieux-ensemble.fr
Barème d'honoraires